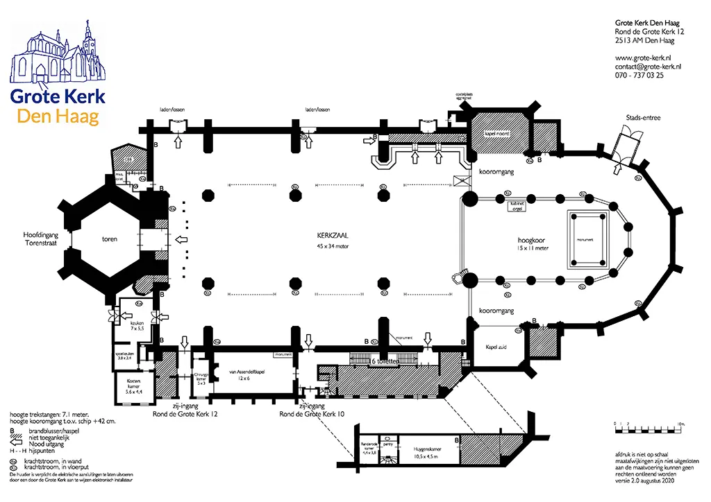
De Grote Kerk beschikt over drie verschillende ruimtes die los van elkaar of gecombineerd gebruikt kunnen worden voor jouw evenement. We hebben een zee aan ruimte beschikbaar, toch voelt de Grote Kerk door de historische ambiance warm en sfeervol aan. We verwelkomen je graag!
Kerkzaal
Seminar tot 1300 zitplaatsen
Borrel tot 1650 personen
Diner tot 900 couverts
Door de enorme ruimte kan de kerkzaal het decor zijn voor jouw beurs of congres, spetterend bedrijfsfeest of chique diner. De ruimte is flexibel in te richten en doet door de zuilen, de prachtige glas in lood ramen en de bijzondere details statig aan.
Grenzend aan de kerkzaal vind je, op een kleine verhoging, het hoogkoor. Een prachtige sfeervolle en indrukwekkende ruimte voor jouw evenement. De kerkzaal en het hoogkoor zijn ook gecombineerd heel goed geschikt als één grote evenementenruimte.
In de kerk vind je tot slot de prachtige Van Assendelftkapel (70 m2). Deze chique ruimte met intieme sfeer is met name geschikt voor kleinere gezelschappen voor onder meer vergaderingen, zakenlunches, ontvangsten, presentaties en diners. Deze intieme kapel met prachtige kruisgewelven en spitsboogramen biedt de ideale locatie voor een stijlvol diner of een vergadering.